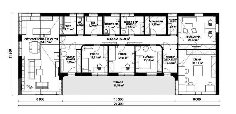
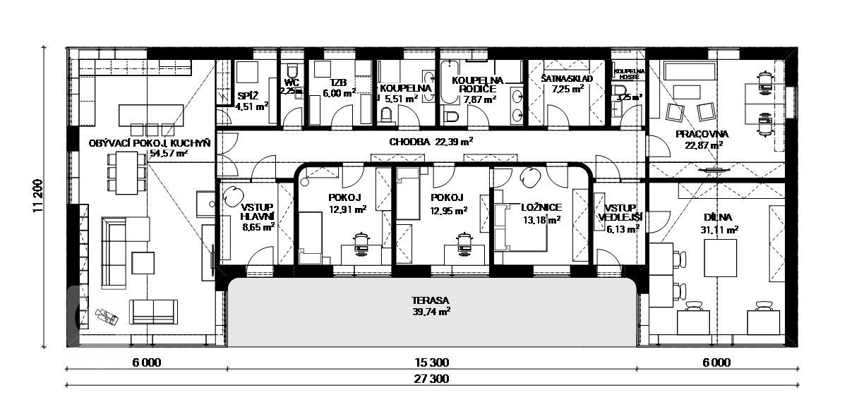
Studie rodinného domu pro mladou rodinu, která miluje řemeslnou činnost a proto je součástí domu velká tvůrčí dílna. Dům bude v pasivním standardu. Fasáda bude provedena v černém opalovaném dřevě tradiční japonsk technologie..
Profilový obrázek/logo
Vložte obrázek ve formátu JPEG, PNG nebo GIF s rozměry alespoň 200x200px.
TIP: Obrázek můžete upravit – posuvníkem zvětšíte či zmenšíte, kliknutím myši a posunem upravíte pozici.
Profilové údaje
Doplňující údaje
Kontaktní údaje
Fakturační údaje